Drucken

rathaus selb10.6.2021 – Der Neubau der Gebäude 3 und 4 des Outlet Center Selb, geplante Neubauten, genehmigte Bauvorhaben, … - der Bauausschuss des Selber Stadtrats hatte in seiner Sitzung am Mittwochabend nachfolgende zusammengefasste Punkte auf seiner Tagesordnung…

+++ Auf dem Büroweg genehmigt +++

Im Vorfeld der Sitzung wurde folgenden Bauvorhaben auf dem Büroweg genehmigt: Die Nutzungsänderung einer Tennishalle in eine Lagerhalle in der Sedanstraße, die Errichtung einer Lagerhalle für landwirtschaftliche Gerätschaften auf dem Anwesen Längenau 26a, der Abbruch einer bestehenden Remise und Errichtung eines Lagerschuppens für Hackschnitzel und Forstgeräte im Anwesen Mittelweißenbach 19 sowie der Umbau einer Wohnhauses mit drei Wohnungen in der Carl-Zollfrank-Straße 17.

 

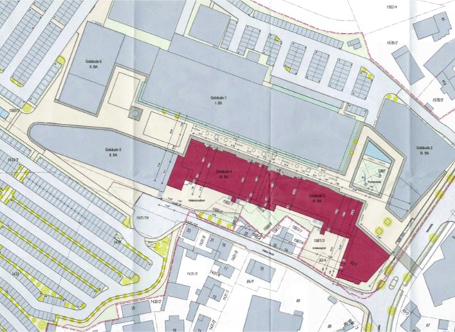
+++ Neubau der Gebäude 3 + 4 für das Outlet Center Selb +++

Geplant ist der Neubau der „Gebäude 3 und 4“ für das Outlet Center Selb in der Vielitzer Straße.

Die beantragten Verkaufsflächen und Warensortimente stehen im Einklang mit den im Bebauungsplan festgesetzten maximal zulässigen Verkaufsflächen und den Sortimentsbeschränkungen. Im Untergeschoss des „Gebäudes 3“ soll im Bereich Ecke Vielitzer Straße / Heinestraße eine Reparaturwerkstatt mit einer Fläche von 272 m² entstehen. Da diese gewerbliche Nutzung dem Erhalt bzw. Unterhalt der Outletflächen (Centermanagement) dient, sie flächenmäßig untergeordnet ist und keine eigenständige Nutzungsart darstellt, ist hier keine Befreiung von den Festsetzungen des B-Planes erforderlich.

outletcenter selb 0621Der Bebauungsplan begrenzt die maximal zulässigen Gebäudehöhen durch Festsetzung von Traufhöhen (TH max.) und Gebäudehöhen (OK). Ein Teil des „Gebäudes 3“, im Bereich Ecke Vielitzer Straße / Heinestraße, überschreitet die hier festgesetzte maximale Gebäudehöhe von 15 Metern um ca. 90 cm. Weiterhin ist im mittleren Gebäudebereich zwischen „Gebäude 3“ und „Gebäude 4“ eine geringfügige Baugrenzenüberschreitung geplant. Für beide Abweichungen kann eine Befreiung nach BauGB gewährt werden.

Weiterhin setzt der Bebauungsplan unterschiedliche Lärmemissionskontingente fest und bestimmt, dass bei Änderungen und Neuerrichtung von Bauvorhaben der Bauaufsichtsbehörde ein schalltechnischer Nachweis vorzulegen ist.

Für den gegenständlichen Bereich entlang der Vielitzer Straße setzt der Bebauungsplan ein maximal zulässiges Lärmemissionskontingent (LEK) von 62 dB(A) am Tag und 45 dB(A) in der Nacht fest. Um die Einhaltung der im Bebaubauungsplan festgesetzten Schallemissionen prüfen zu können, muss die Antragstellerin noch eine schalltechnische Untersuchung durchführen lassen und die Ergebnisse dem Bauamt vorlegen. Insbesondere auch im Hinblick auf den geplanten Anlieferungshof sowie den Abfallwirtschaftshof, die beide unmittelbar an die bestehende Wohnbebauung in der Vielitzer Straße angrenzen, ist dies notwendig.

Für das Bauvorhaben müssen Stellplätze in ausreichender Größe und Anzahl nachgewiesen werden. Es ist anzunehmen, dass diese auf dem geplanten Großparkplatz südwestlich der Vielitzer Straße geschaffen werden sollen.

Die planungsrechtliche Zulässigkeit, insbesondere auf die dadurch resultierenden Lärmemissionen, kann jedoch auch hier derzeit nicht beurteilt werden, da die Ergebnisse der schalltechnischen Untersuchung für den gesamten Planbereich noch ausstehen.

Die Festsetzungen des Bebauungsplanes zur Grünordnung sind zu gegebener Zeit zu beachten.

Dem Bauvorhaben wurde vorbehaltlich der Einhaltung des zulässigen Lärmemissionskontingentes und unter der Bedingung der positiven bauordnungsrechtlichen Prüfung durch die Verwaltung zugestimmt. Die Baugenehmigung wird in Aussicht gestellt.

 

+++ Erweiterung des europäischen Zentrums für Dispersionstechnologien (EZD) +++

Die Firma SKZ-KFE gGmbH plant die Erweiterung ihres europäischen Zentrums für Dispersionstechnologien in der Weißenbacher Straße 86.

Der erdgeschossige Erweiterungsbau schließt nördlich an das Bestandsgebäude an und wird in Massivbauweise errichtet. Er besteht aus zwei Abschnitten und zwar aus einem Verwaltungstrakt mit Büros, Seminarräumen und dem Sozialbereich und einem Labortrakt mit den entsprechenden dazugehörigen Funktionsräumen sowie dem Technikbereich.

Das Bauvorhaben ist planungsrechtlich zulässig. Unter der Bedingung der positiven bauordnungsrechtlichen Prüfung (u.a. Nachweise über die Standsicherheit und des Brandschutzes ) durch die Verwaltung wurde diesem zugestimmt.

 

+++ Umsetzung von Fertiggaragen und zusätzlich Neubau +++

Die auf dem Baugrundstück Fl.-Nr. 1256/9 vorhandenen sechs Fertiggaragen sollen so umgesetzt werden, so dass die Zufahrt zukünftig direkt vom Papiermühlweg aus erfolgen kann. Zusätzlich sollen noch zwei weitere Fertiggaragen angebaut werden.

Vier der acht Garagen überschreiten dabei die im Bebauungsplan festgesetzte südöstliche Baugrenze an der ungünstigsten Stelle bis zu 3 Meter. Ein Stauraum von sechs Metern ist vor allen Garagen gewährleistet. Aus städtebaulicher Sicht kann dieser Abweichung zugestimmt werden, da der Grundstückszuschnitt als auch die vorhandenen örtlichen Gegebenheiten diese Überschreitung eindeutig zulassen.

Weiterhin setzt der Bebauungsplan als zulässige Dachform das Sattel- oder Pultdach fest. Da alle Garagen jedoch mit einem Flachdach ausgeführt werden sollen, ist auch hier eine entsprechende Befreiung von den Festsetzungen des Bebauungsplanes erforderlich. In der unmittelbaren Umgebung sind mehrere Flachdachgaragen vorhanden, so dass auch hier einer Abweichung zugestimmt werden kann.

Der Bauausschuss stimmte der Erteilung entsprechend notwendiger Befreiungen zu. Die Baugenehmigung wird in Aussicht gestellt.

 

+++ Errichtung einer Gartensauna +++

Keine Einwände seitens des Bauausschuss gab es für den Plan, auf dem Grundstück Fichtenweg 46 eine Gartensauna aufzustellen

Das Vorhaben soll zwar außerhalb der überbaubaren Grundstücksfläche errichtet werden. Aus städtebaulicher Sicht und auch unter Würdigung der nachbarlichen Interessen mit den öffentlichen Belangen bestehen keine Bedenken hinsichtlich der Abweichung. Die Grundzüge der Planung werden durch die Abweichung nicht berührt.

 

+++ Erneuerung eines Gartenzaunes +++

Die Antragsteller im Anwesen „Am Steingeröll 23“ beabsichtigen den alten verwitterten Holzzaun gegen einen langlebigen Aluminiumzaun in Holzoptik als Einfriedung entlang der Straßengrundstücksgrenze zu ersetzen.

Laut Bebauungsplan sind hier im Vorgartenbereich Einfriedungen nur aus senkrechten Holzlattenzäunen und Naturhecken bis 1,20 m Höhe über Oberkante Straße zulässig. Da das äußere Erscheinungsbild des Vorhabens zu der bisherigen bebauungsplan-konformen Einfriedung gewahrt bleibt, der Planungsabsicht also nicht widerspricht, ist die Abweichung städtebaulich vertretbar. Somit bestehen keine Bedenken gegen diese Erneuerung der Einfriedung.

 

+++ Errichtung eines Carports +++

Der Erlaubnisbescheid für die Errichtung eines Carports mit Pultdach auf dem Anwesen „Eichendorffweg 5“ in Selb wird in Aussicht gestellt.

Der geplante Carport soll außerhalb der überbaubaren Grundstücksfläche mit Einfahrt vom Hölderlinweg aus errichtet werden. Entlang des Hölderlinweges sind bereits auf fast allen Grundstücken Garagen und Carports als Vergleichsfälle vorhanden. Daher wird auch hier eine entsprechende Abweichung befürwortet.         
Weiterhin setzt der Bebauungsplan als zulässige Dachform das Satteldach fest. Der Carport soll jedoch mit einem flachgeneigten Pultdach errichtet werden. Auch hier ist aus städtebaulicher Sicht eine Abweichung zu befürworten, da alle bestehenden Garagen und Carports bereits Flach- oder Pultdächer aufweisen.

Für beide Abweichungen wird daher eine Befreiung nach § 31 Abs. 2 BauGB befürwortet.

 

+++ Berichterstattung zu Anfragen +++

Roland Schneider (FWS) fragte an, ob es möglich sei, im Ortsteil Vielitz die Straße mittels einer Markierung zu trennen, um einen Streifen für die Radfahrer einzurichten.

Bauamtsleiter Resch stellt hierzu klar, dass die Breite der Fahrbahn ausreichend sein muss für dieses Anliegen. Eine gestrichelte Linie, die von den PKW-Führern überfahren werden darf, wäre eine mögliche Option. Dies soll vom Ordnungsamt und der Polizei geprüft werden.

Dazu nahm Tiefbauamt wie folgt Stellung: Im Ortsteil Vielitz ist die Geschwindigkeit auf 30 km/h begrenzt, zudem handelt es sich um einen verkehrsarmen Bereich mit geringer Schwerverkehrsbelastung. Der Radverkehr kann hier ohne Schutzstreifen o.ä. sicher auf der Fahrbahn geführt werden.

Auf verkehrsarmen Straßen und auf Straßen mit geringen Geschwindigkeiten im Kraftfahrzeugverkehr (z. B. Tempo-30-Zonen) kann laut RASt (6.1.7.2 Führung des Radverkehrs auf der Fahrbahn) der Radverkehr im Allgemeinen komfortabel und hinreichend sicher auf der Fahrbahn fahren. Auf anderen Straßen sind Maßnahmen zu prüfen, um Sicherheit und Komfort der Fahrbahnnutzung zu erhöhen.

 

+++ Anfragen +++

Auf die Berichterstattung zur Anfrage von Roland Schneider reagierte Walter Wejmelka (SPD). Er widersprach den Ausführungen. Diese seien fern jeglicher Realität. Besonders in Stoßzeiten bei Schichtwechsel bei einer Firma in der Vielitzer Straße sei die Situation für Radfahrer in diesem Bereich sehr gefährlich. Auf diese Aussage reagierte Ramona Jülke-Miedl (Aktive Bürger). Sie erklärte, dass seitens der FFW Vielitz von einem angeregten Schutzstreifen abgeraten worden sei. Als Möglichkeit eines ungefährlicheren Weges für Radfahrer werde als Alternative eine auszubauende Führung über die Alte Hofer Straße gesehen. Hinsichtlich der oft erwähnten Geschwindigkeitsüberschreitungen sollen zudem in Kürze Geschwindigkeitsmessungen durchgeführt werden.

Jülke-Miedl ging außerdem auf die jüngsten starken Regenfälle ein. So seien in der Nelkenstraße (Vielitz-Siedlung) jüngst vier Untergeschosse von Häusern überflutet worden. Vermutet werde, dass dies mit dem Kanalanschluss von Schönwald nach Selb zusammenhängen könnte. Es wird um Überprüfung des Sachverhalts gebeten.

Im Zusammenhang mit den starken Regenfällen ergänzte Walter Wejmelka, dass der Goldbergsteig immer wieder ausgespült werde, folglich auch der Brückenradweg dadurch in Mitleidenschaft gezogen werde.

Weiter erwähnte er, dass der Wohnmobilstellplatz am Eisstadion nicht ausreichend ausgeschildert sei.

Erwin Benker (FWS) wies darauf hin, dass das Dach des Bushäuschen am Schloss in Erkersreuth instand gebracht werden muss.